Verkocht

Zevenenderdrift 92 Laren

Omschrijving

ZEVENENDERDRIFT 92 1251RD LAREN

‘Dit huis was een vertrouwde basis van de familie die er ruim 50 jaar heeft gewoond. Het huis, de tuin en de nabije natuur samen zijn altijd gekoesterd.’

Aan het breedste gedeelte van de Zevenenderdrift, gelegen karakteristieke twee onder een kap villa, voorzijde vrij uitzicht over lommerrijk plantsoen. Diepe zonnige achtertuin zuid west, grenzend aan natuurgebied de Laarder Eng met blijvend groen uitzicht. De villa heeft een breed oprij pad met parkeerruimte voor meerdere auto`s, grote garage twee bergingen. Bouwjaar 1935, woonoppervlakte 151 m², garage en bergingen circa 40m², perceel 6.57are, ligging zuid west, circa 30 meter diepe vrije achtertuin.

INDELING

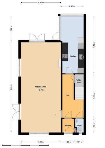
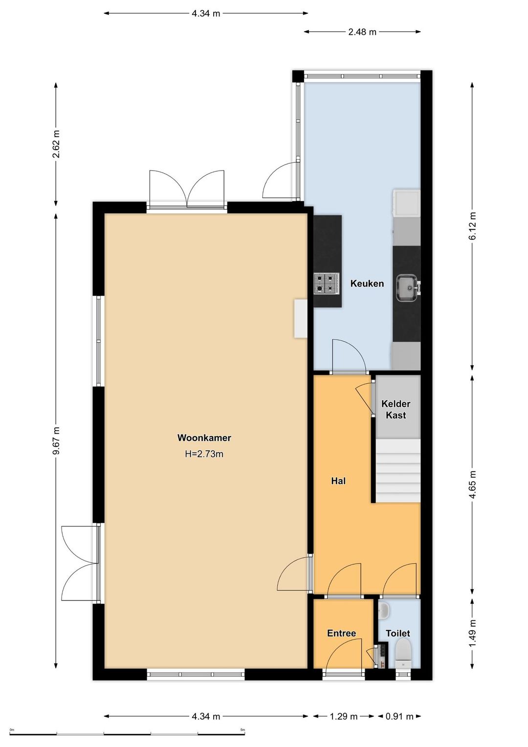
Begane grond
Overdekte entree, vestibule origineel glas-in-lood, toilet met fontein, provisie kelderkast, uitgebouwde woon- eetkeuken, achter ingang, woonkamer, openhaard, 2 openslaande deuren na zij terras en zonnige achtertuin.

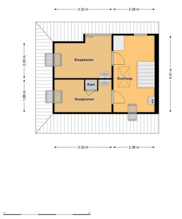
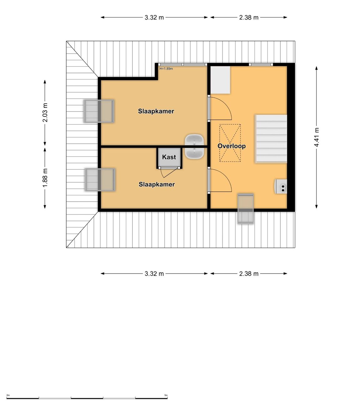
1e Verdieping
Vaste trap naar verdieping, ruime lichte overloop, 3(slaap)kamers kamers aan de achterzijde verbinding naar inpandig balkon, master bedroom met ruim voorbalkon, aansluitend ruime badkamer, ligbad, wastafel, toilet.

2e Verdieping
Vaste trap naar verdieping, overloop CV opstelling , 2 (slaap)kamers, losse trap naar vliering, geschikt als berging.

TUIN
Verzorgde vrije voor-, zij- en zonnige achtertuin, diverse terrassen en schitterende uitzicht over natuurgebied Laarder Eng. De villa heeft een breed oprij pad met parkeerruimte voor meerdere auto`s, een grote garage twee bergingen.

OMGEVING
Centraal rustig gelegen op loopafstand van het gezellige centrum van Laren, winkels, restaurants, terrasjes, SINGER scholen basis- en voorgezet internationale scholen. museum-theater. Voor sportliefhebbers zijn er diverse sportfaciliteiten voor hockey, tennis en voetbal in de buurt.
De ligging nabij uitvalswegen maakt het gemakkelijk om naar Amsterdam of Schiphol te reizen. Daarnaast biedt het Gooisch Natuurreservaat prachtige natuurlijke omgevingen waar je kunt genieten van wandelingen, fietstochten en andere buitenactiviteiten

BIJZONDERHEDEN
• Karakteristieke familievilla, dertiger jaren
• 5 (slaap)kamers, woonoppervlakte 151 m²
• Perceel 657 m² zonnige diepe achtertuin, zuid west, grenzend natuurgebied Laarder Eng
• Oprit voor meerdere auto’s, vrijstaande garage en 2 bergingen
• Centraal rustig gelegen, in kinderrijke omgeving, nabij voorzieningen, scholen,winkels, natuurgebieden, sportfaciliteiten
uitvalswegen Amsterdam, Schiphol, Utrecht.

VRAAGPRIJS € 1.085.000,- kosten koper oplevering in overleg.

Laat u verrassen, door deze karakteristieke familie villa, bel MARIETTE KEMME voor afspraak, welkom.

INFORMATIE
MARIËTTE KEMME RMT
06 512 12 058
jet.kemme@gmail.com

———————————————————————————————————————————————–

FAMILY VILLA ADJACENT TO LAARDER ENG

‘This house was a trusted base of the family that lived there for over 50 years. The house, the garden, and the nearby nature together have always been cherished.’

On the widest part of Zevenenderdrift, situated a distinctive semi-detached villa, front unobstructed views over leafy parkland. Deep sunny back garden southwest, bordering nature reserve the Laarder Eng with permanent green views. The villa has a wide driveway with parking for several cars, a large garage, and two storage rooms. Built in 1935, living area 151 m², garage and storage rooms around 40m², plot 657 m², location southwest, approximately 30 meters deep free backyard.

DESCRIPTION
Ground floor
Covered entrance, vestibule original stained glass, toilet with fountain, storage cupboard, extended living-dining kitchen, rear entrance, living room, fireplace, 2 doors to the side terrace, and sunny back garden.

1st floor
Fixed stairs to first floor, spacious bright landing, 3 (bedroom) rooms at the back connection to the indoor balcony, master bedroom with spacious front balcony, adjacent spacious bathroom, bath, washbasin, toilet.

2nd floor
Fixed stairs to the floor, landing CV preparation, 2 (bed) rooms, loose stairs to the loft, suitable as storage.

GARDEN
Well-kept free front, side and sunny backyard, several terraces and beautiful views of nature Laarder Eng. The villa has a wide driveway with parking for several cars, a large garage and two storage rooms.

SURROUNDINGS
Central quiet location within walking distance of the center of Laren, shops, restaurants, cafes, SINGER schools primary and secondary international schools. Museum-theatre. For sports lovers, there are various sports facilities for hockey, tennis and football nearby.
The location near arterial roads makes it easy to travel to Amsterdam, Utrecht or Schiphol Airport. In addition, the “Gooisch Natuurreservaat” offers beautiful natural surroundings where you can enjoy walks, bicycle rides and other outdoor activities.

DETAILS
– Characteristic family villa, the 1930s
– 5 (bed)rooms, living area 151 m²
– Plot 657 m² sunny deep back garden, southwest, bordering nature reserve Laarder Eng
– Driveway for several cars, detached garage, and 2 storage rooms
– Central quiet location, in a child-rich environment, near amenities, schools, shops, nature reserves, sports facilities,
close to Amsterdam, Schiphol Airport and Utrecht.

PRICE INQUIRY € 1.085.000, – costs for the buyer, possession date is negotiable.

Be surprised by this characteristic family villa, call MARIETTE KEMME for an appointment, welcome!

INFORMATION
MARIËTTE KEMME RMT
06 512 12 058
jet.kemme@gmail.com

Lees de volledige omschrijving

Kenmerken

Algemeen

Aangeboden sinds
6+ maanden
Status
Verkocht
Aanvaarding
In overleg
Soort woonhuis
Villa, twee onder een kapwoning
Soort bouw
Bestaande bouw
Bouwjaar
1930
Soort dak
Bitumineuze dakbedekking, pannen
Ligging
Beschutte ligging, landelijk gelegen, vrij uitzicht

Oppervlakten en inhoud

Wonen
151 m²
Overige inpandige ruimte
2 m²
Gebouwgebonden Buitenruimte
9 m²
Externe bergruimte
40 m²
Perceel
657 m²
Inhoud
537 m³

Indeling

Aantal kamers
6 kamers (5 slaapkamers)
Aantal badkamers
1 badkamer
Badkamervoorzieningen
Douche, ligbad, toilet, wastafel
Aantal woonlagen
3
Voorzieningen
Buitenzonwering, dakraam, natuurlijke ventilatie, tv kabel

Energie

Energielabel
E
Isolatie
Gedeeltelijk dubbel glas
Verwarming
Cv ketel
Warm water
Cv ketel

Kadastrale gegevens

Perceelnaam
LAREN D 419
Oppervlakte
657 m²
Eigendomssituatie
Volle eigendom

Buitenruimte

Tuin
Achtertuin, voortuin, zijtuin
Achtertuin
480 m²
Ligging tuin
Zuidwest

Bergruimte

Schuur/berging
Vrijstaand hout

Garage

Capaciteit
1 auto
Voorzieningen
Elektra

Parkeergelegenheid

Soort parkeergelegenheid
Op eigen terrein
Bekijk alle kenmerken